【樱桃视频APP汅黄器系列】
【传力接头系列】
【防水套管系列】
【补偿器系列】
【橡胶接头系列】

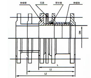
SSQ型铸铁樱桃视频APP汅黄器也称樱桃视频APP汅黄节、膨胀节、补偿器、樱桃视频APP汅黄接头。樱桃视频APP汅黄器在一定范围内可轴向樱桃视频APP汅黄,也能在一定的角度内克服管道对接不同轴向而产生的偏移,能极大的方便阀门管道的安装与拆卸,在管道允许樱桃视频APP汅黄量中可以自由樱桃视频APP汅黄,一旦越过其最大樱桃视频APP汅黄量就起到限位,确保管道的安全运行。
SSQ型铸铁樱桃视频APP汅黄器主要为保障管道安全运行,具有以下作用:补偿吸收管道轴向、横向、角向热变形;吸收设备振动,减少设备振动对管道的影响;吸收地震、地陷对管道的变形量。
SSQ型铸铁樱桃视频APP汅黄器也称樱桃视频APP汅黄节、膨胀节、补偿器、樱桃视频APP汅黄接头。樱桃视频APP汅黄器在一定范围内可轴向樱桃视频APP汅黄,也能在一定的角度内克服管道对接不同轴向而产生的偏移,能极大的方便阀门管道的安装与拆卸,在管道允许樱桃视频APP汅黄量中可以自由樱桃视频APP汅黄,一旦越过其最大樱桃视频APP汅黄量就起到限位,确保管道的安全运行。
SSQ型铸铁樱桃视频APP汅黄器主要为保障管道安全运行,具有以下作用:补偿吸收管道轴向、横向、角向热变形;吸收设备振动,减少设备振动对管道的影响;吸收地震、地陷对管道的变形量。
铸铁樱桃视频APP汅黄器详细介绍:
1、铸铁樱桃视频APP汅黄器 该产品为各种给排水管道、水塔、水泵、水表、阀门的安装拆换提供了极大方便,给长距离管路因温差樱桃视频APP汅黄起到了很好的调节作用。
2、铸铁樱桃视频APP汅黄器 该产品内管材分为铸铁( HT )、镀锌( DX )和钢制( SF )三种。工作压力分 PN6 、 PN10 、 PN16 三种。
3、铸铁樱桃视频APP汅黄器安装前须松开压盘螺栓,将该产品拉至安装长度,然后用对角法拧紧,切勿压偏,如架空使用,两端须安装相应的固定支架。
4、铸铁樱桃视频APP汅黄器 法兰连接采用 GB4216.3 - 4126.5 标准。
5、铸铁樱桃视频APP汅黄器如选用其它规格可另行生产。
SSQ型铸铁樱桃视频APP汅黄器使用范围:
由于樱桃视频APP汅黄器具有良好的综合性能,所以它广泛用于化工、建筑、给水、排水、石油、轻重工业、冷冻、卫生、水暖、消防、电力等基础工程。
SSQ型铸铁樱桃视频APP汅黄器作用:
SSQ型铸铁樱桃视频APP汅黄器在一定范围内可轴向樱桃视频APP汅黄,也能在一定的角度内克服管道对接不同轴向而产生的偏移,能极大的方便阀门管道的安装与拆卸,在管道允许樱桃视频APP汅黄量中可以自由樱桃视频APP汅黄,一旦越过其最大樱桃视频APP汅黄量就起到限位,确保管道的安全运行。
SSQ型铸铁樱桃视频APP汅黄器安装注意事项:
1、樱桃视频APP汅黄器在安装前应先检查其型号、规格及管道配置情况,必须符合设计要求。
2、对带内套筒的樱桃视频APP汅黄器应注意使内套筒子的方向与介质流动方向一致,铰链型樱桃视频APP汅黄器的铰链转动平面应与位移转动平面一致。
3、需要进行“冷紧”的樱桃视频APP汅黄器,预变形所用的辅助构件应在管路安装完毕后方可拆除。
4、严禁用樱桃视频APP汅黄器变形的方法来调整管道的安装超差,以免影响樱桃视频APP汅黄器的正常功能、降低使用寿命及增加管系、设备、支承构件的载荷。
5、安装过程中,不允许焊渣飞溅到波壳表面,不允许波壳受到其它机械损伤。
6、管系安装完毕后,应尽快拆除樱桃视频APP汅黄器上用作安装运输的黄色辅助定位构件及紧固件,并按设计要求将限位装置调到规定位置,使管系在环境条件下有充分的补偿能力。
7、樱桃视频APP汅黄器所有活动元件不得被外部构件卡死或限制其活动范围,应保证各活动部位的正常动作。
8、水压试验时,应对装有樱桃视频APP汅黄器管路端部的次固定管架进行加固,使管路不发生移动或转动。对用于气体介质的樱桃视频APP汅黄器及其连接管路,要注意充水时是否需要增设临时支架。水压试验用水清洗液的96氯离子含量不超过25PPM。

技术参数:
|
公称通径
|
最小长度L
|
安装长度L1
|
最大长度L2
|
|
40
|
140
|
170
|
200
|
|
50
|
140
|
170
|
200
|
|
65
|
160
|
205
|
250
|
|
80
|
180
|
225
|
270
|
|
100
|
200
|
250
|
300
|
|
125
|
220
|
250
|
300
|
|
150
|
220
|
270
|
320
|
|
200
|
240
|
290
|
320
|
|
250
|
260
|
315
|
370
|
|
300
|
280
|
340
|
400
|
|
350
|
290
|
350
|
410
|
|
400
|
300
|
360
|
420
|
|
450
|
320
|
385
|
450
|
|
500
|
320
|
385
|
450
|
|
600
|
350
|
415
|
480
|
|
700
|
370
|
440
|
510
|
|
800
|
390
|
460
|
530
|
|
900
|
420
|
495
|
570
|
|
1000
|
440
|
515
|
590
|
|
1200
|
490
|
570
|
650
|
|
1400
|
520
|
605
|
690
|
|
1600
|
550
|
640
|
730
|
|
1800
|
590
|
680
|
770
|
|
2000
|
630
|
720
|
810
|
|
2200
|
670
|
760
|
850
|
|
2400
|
710
|
800
|
890
|
|
2600
|
750
|
840
|
930
|
|
2800
|
290
|
880
|
970
|
|
3000
|
840
|
920
|
1010
|
|
3200
|
880
|
960
|
1050
|
|
3400
|
920
|
1000
|
1090
|